REHAU Euro-Design 70
Профільна система REHAU Euro-Design 70 повністю відповідає вимогам Державної програми компенсації заходів з термомодернізації житлового фонду, які вимагають використовувати для засклення житлових приміщень на переважній частині території України саме профільні системи з 5-камерною будовою та монтажною глибиною від 70 мм.
Вікна з профільної системи Euro-Design 70 забезпечать оптимальний рівень теплоізоляції Вашої оселі та допоможуть зменшити тепловтрати у приміщенні, а отже – заощадити кошти на опаленні та кондиціюванні.
До того ж вони задовольняють найвищі вимоги до дизайну та довершують інтер'єр Вашого будинку. Різноманіття форм і кольорів стулки у поєднанні з покращеним дизайном відкривають для цього великі можливості.
Стандартне рішення для вікон з профілю REHAU
Вікна з профілю REHAU Euro-Design 70 / Ecosol-Design 70
Rehau Euro-Design 70 - це прекрасне рішення для засклення приватних будинків, квартир, балконів. Завдяки прекрасним тепловим характеристикам вікна з п'яти-камерного профілю REHAU здатні значно знизити енерговитрати, а також стати надійним захистом від вуличного шуму. Великою перевагою є можливість встановити в вікна з профілю REHAU 70 двокамерний склопакет шириною до 41 мм, що значно підвищить показники тепло- і звукоізоляції
Будь-яка архітектурна завдання, поставлене при склінні будівлі металопластиковими вікнами може бути з успіхом вирішена, якщо замовити вікна з профілю REHAU 70. Це можуть бути вікна великих розмірів, нестандартної форми, в ламінації під структуру дерева або пофарбовані в будь-який колір.
Широкі архітектурні можливості
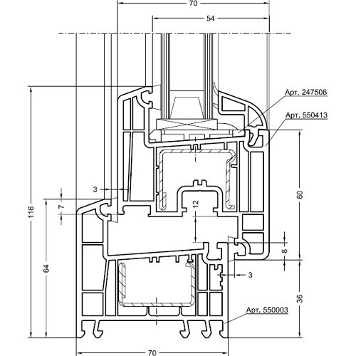
Завдяки широкому вибору додаткових профілів система REHAU Euro-Design 70 дозволяє реалізувати різноманітні архітектурні рішення, головними характеристиками яких залишаються якість та економічність. З інтеграцією системи Ecosol-Design 70 в систему Euro-Design тепер Ви можете обрати стулку стандартної висоти (60 мм) чи зменшеної (54 мм), яка забезпечить кращу інсоляцію приміщення.
Система кольорових рішень REHAU відкриває додаткові можливості: з поміж понад 40 варіантів декорів та 220 кольорів Ви можете обрати свій улюблений або ж оздобити вікна за допомогою алюмінієвих накладок.
| Технічні характеристики профільної системи REHAU Euro-Design 70 | |
|---|---|
Конструктивна глибина | 70 мм |
Кількість камер | 5 камер |
Максимальна товщина склопакету | до 41 мм |
Товщина пакету профілів (рама+стулка) | стандарт = 116 мм, звужена = 110 мм |
Коефіцієнт теплопередачі* | Uf = 1,3 Вт/м²K |
Коефіцієнт опору теплопередачі** | Rf = 0,8 м²K/Вт |
Звукоізоляція* | до Rw,P = 43 дБ |
Зламобезпека | до класу 2 (ENV 1627) |
Повітропроникність | клас 4 згідно з EN 12207 |
Водопроникність | до клау 9A згідно з EN 12208 |
Ущільнення | EPDM |
Кількість контурів | 2 контури ущільнення притвору |
* Дані отримані з експертного висновку ift Rosenheim.
** Коефіцієнт опору теплопередачіі отримано за результатами протоколу випробувань № 162с від 12.07.2013р.
Екологічно відповідальне виробництво
Всі європейські заводи REHAU по виготовленню віконних профілів отримали сертифікати екологічно відповідальних виробників пвх-продуктів VinylPlus за дотримання принципів сталого розвитку на всіх етапах виробничого циклу: від заготовки до вторинної переробки сировини.
Вікно REHAU + REHAU Монтаж: системне рішення з одних рук
Як показує наш багаторічний досвід, яким би якісним вікно не було на виході з виробництва, нефаховий монтаж може згодом повністю позбавити його функціональності. Саме тому вперше в Україні ми запропонували системне рішення з одних рук: REHAU вікно + REHAU Montage. Власна система фахового монтажу REHAU Montage із застосуванням якісних монтажних матеріалів покликана забезпечити довговічність монтажного шва, співставну з життєвим циклом самого вікна.
- ідеальна сумісність матеріалів
- всі матеріали вироблено в Європі
- технічні характеристики, підтверджені протоколами випробувань акредитованих європейських лабораторій
- інсталятори проходять підготовку в Академії REHAU
Переваги
Профільна система REHAU Euro-Design 70 повністю відповідає вимогам Державної програми компенсації заходів з терм модернізації житлового фонду, які вимагають використовувати для засклення житлових приміщень на переважній частині території України саме профільні системи з 5-камерною будовою та монтажною глибиною від 70 мм.
Вікна з профільної системи Euro-Design 70 забезпечать оптимальний рівень теплоізоляції Вашої оселі та допоможуть зменшити тепловтрати у приміщенні, а отже – заощадити кошти на опаленні та кондиціюванні.
До того ж вони задовольняють найвищі вимоги до дизайну та довершують інтер'єр Вашого будинку. Різноманіття форм і кольорів стулки у поєднанні з покращеним дизайном відкривають для цього великі можливості.
Якщо пріоритетним критерієм при виборі вікон є ціна - кращим вибором буде профільна система REHAU Euro-Design 60.
Якщо Ви шукаєте краще співвідношення ціни і якості - профільна система REHAU Euro-Design 70.
Якщо для Вас не так важлива вартість як вишуканий дизайн вікон - REHAU Brillant-Design.
Якщо Вам потрібно оптимальне рішення для засклення, тоді обирайте REHAU SYNEGO
Якщо Ви готові платити за найвищі показники теплоізоляції - для Вас існує профільна система REHAU Geneo.
В цілому, відмінна якість продукції, кращі показники тепло- і шумоізоляції, гарантія захисту від підробок, доступна цінова політика - все це дає підстави стверджувати, що вибираючи вікна з профільних систем Rehau, Ви робите правильний вибір!
Як замовити вікна?
Ми здійснюємо весь комплекс послуг: від виміру до сервісного обслуговування. Досвідчені консультанти і замірники допоможуть Вам вибрати оптимальну модель вікна з профілю Рехау для вашого інтер'єру і бюджету. Ви можете приїхати до нас в офіс, щоб ознайомитися з усім асортиментом віконних профілів, або замовити безкоштовний виклик замірника з каталогами матеріалів і фурнітури.
Ваше замовлення буде готове і встановлене в стислі терміни. Гарантія на матеріали і роботу становить до 12 років.